Niezbędne dane do złożenia oferty cenowej

Aby sporządzić precyzyjną ofertę cenową, konieczne jest dostarczenie kluczowych informacji, takich jak ilość gazów do schłodzenia, temperatura wlotowa, skład chemiczny, poziom zapylenia oraz wymagania dotyczące hałasu i temperatury za chłodnicą. Te dane są fundamentem skutecznego doboru technologii chłodzenia.

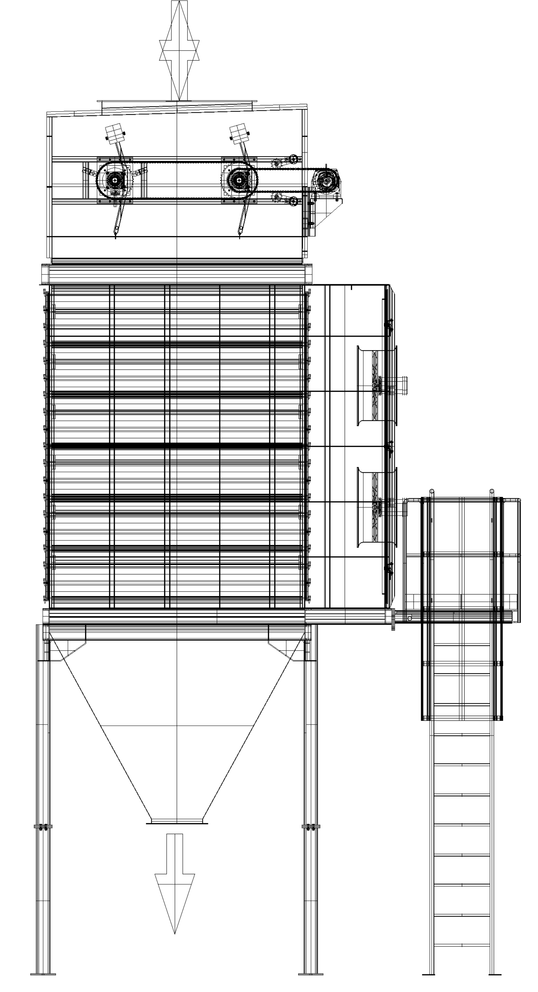
Budowa wymiennika ciepła

Typowy wymiennik ciepła składa się z stalowej obudowy, elementów wymiany ciepła, wentylatorów chłodzących oraz systemu czyszczenia. Wymienniki gaz/gaz i gaz/ciecz są wyposażone w inspekcyjne drzwi, lej zsypowy oraz układ automatyki, co zapewnia efektywność i łatwość obsługi.

PRZEMYSŁOWE SYSTEMY OCHRONY POWIETRZA | Technologia na wyższym poziomie

 Lider Ekologii nagroda Ministra Środowiska RP

thermal waste treatment technology

Materiały do pobrania

Polityka Prywatności

Polityka plików cookies

Kontakt

ul. Stanisława Zwierzchowskiego 33

61-249 Poznań, Polska

Tel.:+48 61 810 83 16

ecoinstal@ecoinstal.com

 Należymy do  Günther Group Lidera Przemysłowych Systemów ochrony Powietrza w UE

wymiennik ciepła-ekonomizer

Nasze chłodnice są idealnym ekonomizerem do odzysku ciepła w procesach technologicznych.

Zakres produkcji chłodnic

 

1.W zależności od medium przyjmującego ciepła wykonujemy chłodnice typu:

  • Gaz / gaz (wymienniki z płaskimi rurami)
  • Gaz / ciecz (wymienniki płytowe)

 

Dla typu gaz-gaz czynnikiem chłodzącym jest najczęściej powietrze atmosferyczne. Ciepło odebrane przez powietrze chłodzące w razie konieczności może być wykorzystane do podgrzania wody lub oleju, w dodatkowym wymienniku zainstalowanym na wylocie powietrza z chłodnicy. Ponieważ drugi stopień wymiennika ciepła pracuje wtedy z czystymi gazami, posiada on wysoką skuteczność oraz niskie koszty instalacyjne.

 

Dla chłodnic typu gaz-ciecz czynnikiem chłodzącym jest najczęściej woda. Parametry wody chłodzącej – temperatura 150°C, ciśnienie 5 bar. Aby uniknąć problemu z powierzchniami chłodzącymi w okolicy punktu rosy, kontroluje się temperaturę płynu na wlocie. Zależnie od składu gazu w procesie, można też korzystać z dodatków absorpcyjnych, np. Ca(OH)2.

Ponadto dzięki przystosowaniu wymiennika do pracy z cieczą, w charakterze medium chłodzącego możliwe jest wtórne wykorzystanie odzyskanego ciepła.

 

2. W zależności od obiegu czynnika chłodzącego chłodnice gaz-gaz dzielą się na następujące typy:

  • Typ F – bez recyrkulacji powietrza chłodzącego. Regulacja temperatury czynnika chłodzącego następuję tylko poprzez uruchamianie odpowiedniej ilości wentylatorów chłodzacych. Nie ma możliwości regulacji temperatury powietrza chłodzącego (zaciągane jest powietrze atmosferyczne)
  • Typ FU – z recyrkulacja powietrza chłodzącego
  • Typ FR – z recyrkulacja powietrza chłodzącego

Dla chłodnic FU i FR z uwagi na ponowny obieg powietrza chłodzącego istnieje możliwość regulacji temperatury powietrza chłodzącego wchodzącego na wymiennik.

 

3. Wykonania specjalne

Niekiedy możliwe jest wykorzystanie schłodzonych i przefiltrowanych spalin do ponownego schładzania zanieczyszczonych gazów. Schłodzone w wymienniku gazy (powietrze / gaz) po oczyszczeniu w filtrze panelowym zainstalowanym nad wymiennikiem, kierowane są ponownie do wymiennika jako czynnik chłodzący. Wymiennik ciepła został opracowany w taki sposób, że ciśnienie po stronie przefiltrowanego gorącego gazu jest zawsze niższe niż po stronie przefiltrowanego gazu chłodzącego. Gwarantuje to, że czyste przefiltrowane gazy nie ulegają ponownemu zanieczyszczeniu

Zasada Działania Wymienników Ciepła w Procesie Chłodzenia Gazów

Wymienniki ciepła działają na zasadzie przenoszenia ciepła z ogrzanych gazów do medium chłodzącego, zazwyczaj powietrza lub cieczy. Dzięki wymuszonej konwekcji, ciepło jest efektywnie przekazywane przez ścianki rur, a odpowiednie systemy czyszczące zapobiegają osadzaniu się pyłu na powierzchniach wymiennika.

Systemy schładzania gazów opracowane przez Eco Instal

Eco Instal wprowadza innowacyjne systemy schładzania gazów, które obniżają temperaturę gazów procesowych do 550-600 °C. Te rozwiązania znajdują zastosowanie w hutnictwie szkła, aluminium, miedzi oraz w cementowniach, zapewniając efektywność i eliminując potrzebę dopuszczania powietrza zewnętrznego.

Podpowiedź:

Możesz usunąć tę informację włączając Plan Premium

Ta strona została stworzona za darmo w WebWave.
Ty też możesz stworzyć swoją darmową stronę www bez kodowania.